Dobromyśl 56 „Wśród Drzew” ETAP I
Nowa Inwestycja – Osiedle „Wśród Drzew”
Kielce, ul. Dobromyśl Z przyjemnością przedstawiamy naszą najnowszą inwestycję – osiedle domów jednorodzinnych „Wśród Drzew”, położone w wyjątkowym miejscu – tuż przy lesie, z malowniczym widokiem na Góry Świętokrzyskie.
To topowa, unikalna i magiczna lokalizacja, która gwarantuje ciszę, spokój oraz niezależność, a jednocześnie znajduje się zaledwie kilka minut od centrum Kielc.
Każdy dom został zaprojektowany w duchu energooszczędności i nowoczesnego komfortu – w standardzie deweloperskim zamkniętym, z rekuperacją i pompą ciepła w cenie.
To miejsce, gdzie natura spotyka nowoczesność – Twój dom w „lesie” blisko miasta.
Kupujący zwolniony z podatku PCC
Rozpoczęcie inwestycji : Luty 2026
Zakończenie inwestycji : Styczeń 2027
KOSZTY DODATKOWE PRZY ZAKUPIE NIERUCHOMOŚĆI:
– 1,23 brutto za udział w drodze
– opłaty za wykończenie czy zmiany lokatorskie- według indywidualnego zamówienia dokonanego przez Nabywcę
– opłaty licznikowe płatne do Dewelopera, począwszy od dnia odbioru do momentu przepisania liczników na Nabywcę
INWESTOR:
JMS INWESTYCJE SP. Z O.O.
ul.Radoszycka 10
25-825 Kielce
NIP: 9592085488
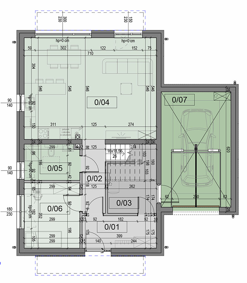
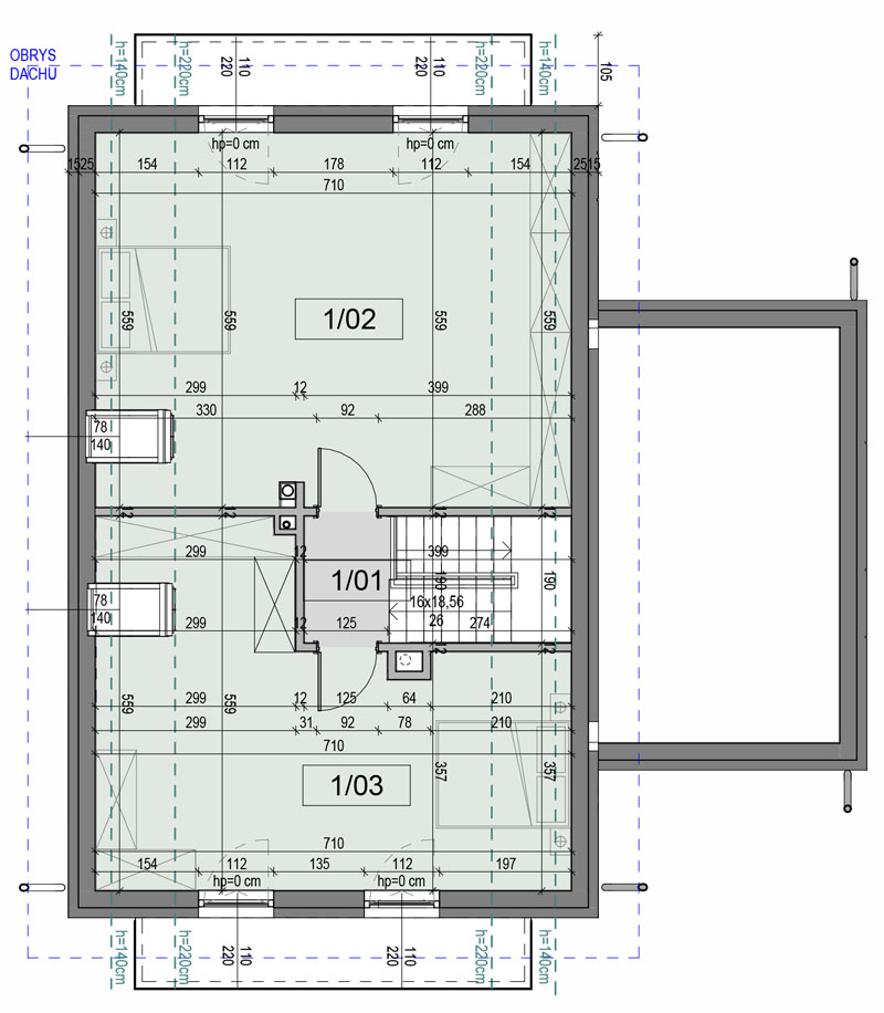
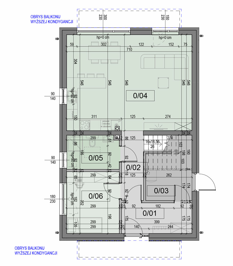
RZUTY DOMKÓW
| DOM | PARTER | PODDASZE DO ARANŻACJI |
CENA (Z VAT) Cena za 1 m2 ( z VAT) |
STATUS | HISTORIA CENY |
|---|---|---|---|---|---|
| D2 | 71,38m² + GARAŻ | 58,12m² |
725 000,00 zł 5 598,45 zł |
SPRZEDANE | 17.12.2025 |
| D3 | 71,38m² + GARAŻ | 58,12m² |
699 000,00 zł 5 397,68 zł |
SPRZEDANE | 17.12.2025 |
| D4 | 71,38m² | 58,12m² |
630 000,00 zł 4 864,86 zł |
SPRZEDANE | 17.12.2025 |
| D5 | 71,38m² | 58,12m² |
630 000,00 zł 4 864,86 zł |
SPRZEDANE | 17.12.2025 |
| D6 | 71,38m² + GARAŻ | 58,12m² |
750 000,00 zł 5 791,50 zł |
SPRZEDANE | 17.12.2025 |
| D7 | 71,38m² + GARAŻ | 58,12m² |
750 000,00 zł 5 791,50 zł |
SPRZEDANE | 17.12.2025 |
| D8 | 71,38m² | 58,12m² |
630 000,00 zł 4 864,86 zł |
SPRZEDANE | 17.12.2025 |
| D9 | 71,38m² | 58,12m² |
630 000,00 zł 4 864,86 zł |
SPRZEDANE | 17.12.2025 |
INWESTOR:
JMS INWESTYCJE SP. Z O.O.
ul.Radoszycka 10
25-825 Kielce
NIP: 9592085488









